Продажа недвижимости с функционирующим юр.лицом в аренде на пять лет. Мы предлагаем детский сад с англоязычным уклоном и персоналом в Праге 3, в привлекательной резиденции Central Park Praha, Жижков. Стоимость самого имущества составляет 11 000 000 крон + 4% налог на передачу. В случае продажи юридического лица, налог не применяется. Эта недвижимость не имеет никаких обременений, которые могут ограничивать процесс продажи. Мы рекомендуем покупать вместе с уже функционирующим, современным детским садом (13 миллионов крон).
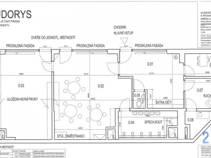
Помещение площадью 119 м2 можно разделить на три коммерческие площади 53,85 квадратных метра, 32,77 квадратных метра и 33,04 квадратных метра. Сад находится на первом этаже резиденции. С носителями языка из Канады и США заключены трудовые договоры, и, конечно, есть и чешскоговорящие воспитатели. Директор является гражданином Чехии, имеет опыт работы в этой области и прекрасно говорит по-английски. Детский сад сотрудничает с маркетинговой компанией. Было вложено 1 млн крон (создание ООО, юридические документы, оборудование, мебель, интернет, маркетинг и реклама). Ежемесячные расходы: Коммунальные платежи: 8000 крон, заработная плата - 50 000 крон. Реклама: 7000 крон. За уборку: 1500 крон.
Стоимость пребывания ребенка в детском саду: 12 900 крон в месяц плюс питание 89 крон в день. Эта цена в среднем и была установлена с целью привлечь клиентуру. Дальнейший план повысить цены до 14 900 крон.
| ID объекта: | RC-00158 |
| Планировка /тип: | Действующий бизнес |
| Площадь: | 119 м2 |
| Стоимость м2: | 3639 € за м2 |
| Район: | Прага 3 (Žižkov) |
Pod Čertovou skalou, 180 00 Praha-Praha 8, Чехия
Nad Lesním divadlem, 142 00 Praha-Praha 4, Чехия