❗ К сожалению, база недвижимости представленная у нас на сайте не актуальна и несет лишь реперезентативный характер,
но все же даст Вам представление о том, какие бывают объекты недвижимости в Праге. Мы работаем над обновлением базы.
Если у Вас есть актуальная база объектов недвижимости в Праге или Вы хотите размещать свои объекты у нас, то будем рады обсудить сотрудничество,
свяжитесь с нами, лучше всего по электронной почте info@rusczech.com или через какой-то мессенджер (мы есть на номере +420773647696).
Наш ресурс, тем не менее неплохо находится через поисковые системы и будет далее развиваться.
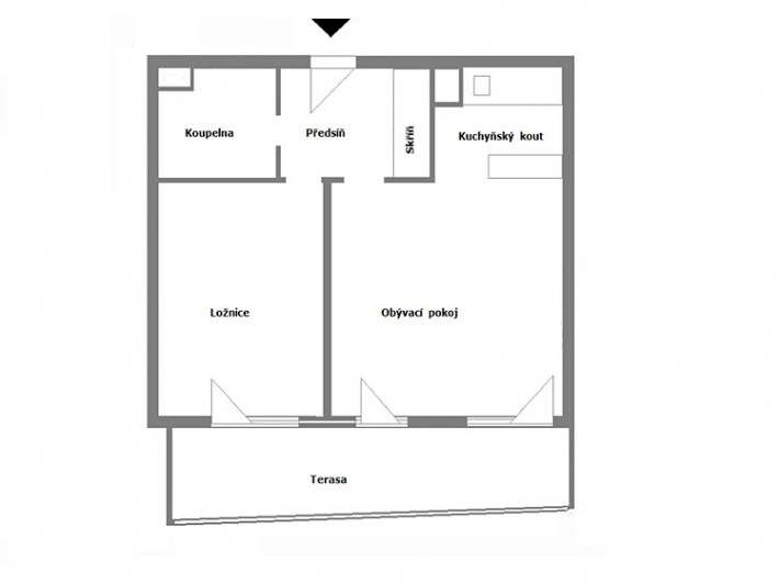
Мы предлагаем на продажу очень красивую квартиру студию, планировкой 2 + кк, полезной площадью 60 м2, расположенную в в престижном районе Праге 10 - Страшнице.
Квартира расположена на первом этаже нового здания, и к ней относится палисадник размером 14 м2, подвал 2 м2 и зарезервированное место для парковки. В квартире имеется оборудованная кухня и шкафы.
В окрестностях есть метро: Skalka (460 м), трамвай: Černokostelecká (631 м), общественный транспорт (автобусы): Donatellova (122 м), железная дорога: Praha-Strašnice zastávka (1457 м), банкомат: Bankomat Air Bank (163 м), почта: Pošta Praha 025 - Česká pošta, s.p. (1093 м), аптека: Dr. Max (178 м), спортивные сооружения: Badminton Aréna Skalka (178 м), ресторан: Restaurace Starý pán (52 м), магазин: Tesco Extra (178 м), школа: ZŠ Praha 10,60 V Rybníčkách (291 м).