Семейный дом 147 м2, участок 573 м2, Прага 5 - Ржепорийе
+420 773 647 696
info@rusczech.com
❗ К сожалению, база недвижимости представленная у нас на сайте не актуальна и несет лишь реперезентативный характер,
но все же даст Вам представление о том, какие бывают объекты недвижимости в Праге. Мы работаем над обновлением базы.
Если у Вас есть актуальная база объектов недвижимости в Праге или Вы хотите размещать свои объекты у нас, то будем рады обсудить сотрудничество,
свяжитесь с нами, лучше всего по электронной почте info@rusczech.com или через какой-то мессенджер (мы есть на номере +420773647696).
Наш ресурс, тем не менее неплохо находится через поисковые системы и будет далее развиваться.
Семейный дом 147 м2, участок 573 м2, Прага 5 - Ржепорийе
Ve Výhledu, 155 00 Praha-Praha-Řeporyje, Чехия
326,400 €
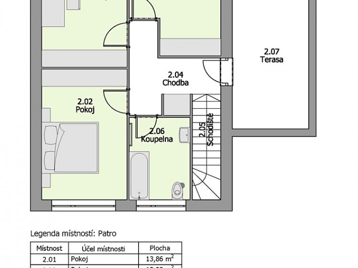
Рады Вам предложить семейный дом 4 + кк (по желанию клиента можно даже 5+kk) общей площадью 147 м2, включая гараж и террасу над гаражом, площадь сада 573 м2, в Прага 5 - Ржепорийе реализуемый в рамках проекта Треугольник Ржепорийе.
Использование качественных строительных материалов гарантирует современное и экономичное жилье. Часть планировки - пол с подогревом. Указанная цена включает в себя планировку, которая может быть изменена по желанию клиента. Семейный дом находится в стадии строительства на той стадии, когда у Вас есть уникальная возможность завершить внутреннюю планировку и интерьер дома в соответствии с вашими пожеланиями.
Рядом автобусная остановка, на общественном транспорте можно добраться до метро B – Стодулки, Лука или Новая Бутовица. Рядом находится детская площадка, построенная инвестором. Хороший выезд на окружную дорогу Праги в направлении аэропорта Прага и Пльзень. В Ржепорийе хорошая инфраструктура, магазины, школы, детские сады, почта и т.д.