Половина дома на две семьи, 173 м2, сад, сауна, Прага 6 – Суходол
+420 773 647 696
info@rusczech.com
❗ К сожалению, база недвижимости представленная у нас на сайте не актуальна и несет лишь реперезентативный характер,
но все же даст Вам представление о том, какие бывают объекты недвижимости в Праге. Мы работаем над обновлением базы.
Если у Вас есть актуальная база объектов недвижимости в Праге или Вы хотите размещать свои объекты у нас, то будем рады обсудить сотрудничество,
свяжитесь с нами, лучше всего по электронной почте info@rusczech.com или через какой-то мессенджер (мы есть на номере +420773647696).
Наш ресурс, тем не менее неплохо находится через поисковые системы и будет далее развиваться.
Половина дома на две семьи, 173 м2, сад, сауна, Прага 6 – Суходол
Staročeská, 165 00 Praha-Praha-Suchdol, Чехия
374,000 €
Продаётся половина дома на две семьи общей площадью 173 м2, который стоит на улице Староческа (Staročeská) в районе Прага 6 – Сухдол.
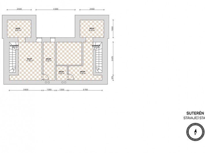
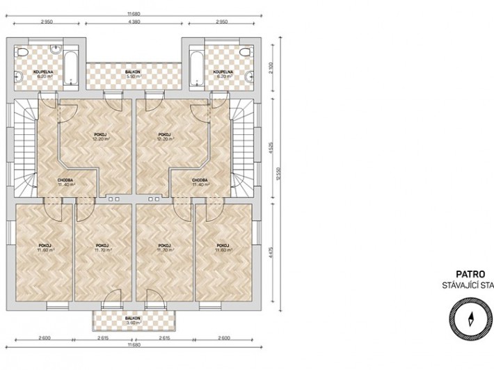
Это кирпичный двухэтажный дом с подвалом, жилым чердаком и садом. На первом этаже у него находится гостиная, совмещённая с кухней, комната и туалет. На втором этаже три спальни, у двух из которых есть выходы на балконы, а также ванная комната с туалетом и ванной. Помещения третьего этажа с наклонной крышей можно оборудовать по своему усмотрению. Подвал используется только для хранения вещей.
Во всём доме вставлены пластиковые окна; утеплён фасад и крыша.
Площадь участка составляет 296 м2. На нём сделана удобная терраса. Также в саду стоит ещё одно здание, похожее на большую веранду, которое предназначено исключительно для отдыха. В нём есть печь для выпекания пиццы, коптильня, сауна, душевая и туалет.