❗ К сожалению, база недвижимости представленная у нас на сайте не актуальна и несет лишь реперезентативный характер,
но все же даст Вам представление о том, какие бывают объекты недвижимости в Праге. Мы работаем над обновлением базы.
Если у Вас есть актуальная база объектов недвижимости в Праге или Вы хотите размещать свои объекты у нас, то будем рады обсудить сотрудничество,
свяжитесь с нами, лучше всего по электронной почте info@rusczech.com или через какой-то мессенджер (мы есть на номере +420773647696).
Наш ресурс, тем не менее неплохо находится через поисковые системы и будет далее развиваться.
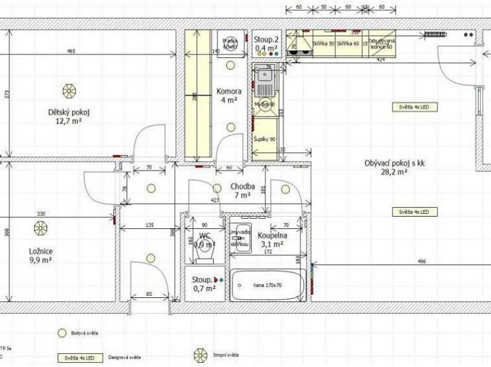
Продаётся квартира 3 + kk с лоджией, на 5-м этаже 13-этажного панельного, кооперативного отремонтированного дома с пластиковыми окнами. Планировка 3 + kk состоит из гостиной с кухней и лоджией, коридоров, ванной комнаты, туалета, технической комнаты и двух жилых комнат. Квартира после полного, очень хорошо сделанного ремонта и оборудована роскошным дизайнерским оборудованием. Новый кухонный блок со светодиодным освещением включает электрическую духовку, керамическую плиту, вытяжку, посудомоечную машину и холодильник / морозильник. В ванной комнате есть ванна с классическим душем и душевая кабина. Туалет отдельно. Вид на юг и север. Парковка находится прямо перед домом.
В окрестностях есть метро Háje (592 м), трамвай:Na Groši (2922 м), общественный транспорт (автобусы):Metodějova (102 м), железная дорога:Praha-Hostivař (3409 м), банкомат:Bankomat České spořitelny (259 м), почта:Pošta Praha 415 - Česká pošta, s.p. (601 м), аптека:Lékárna Magistra Opatov (154 м), спортивные сооружения:Agoge Gym (174 м), ресторан:Opatovské terasy - Restaurace Palma (174 м), магазин:Penny Market (154 м), школа:Gymnázium Opatov Praha (182 м).