❗ К сожалению, база недвижимости представленная у нас на сайте не актуальна и несет лишь реперезентативный характер,
но все же даст Вам представление о том, какие бывают объекты недвижимости в Праге. Мы работаем над обновлением базы.
Если у Вас есть актуальная база объектов недвижимости в Праге или Вы хотите размещать свои объекты у нас, то будем рады обсудить сотрудничество,
свяжитесь с нами, лучше всего по электронной почте info@rusczech.com или через какой-то мессенджер (мы есть на номере +420773647696).
Наш ресурс, тем не менее неплохо находится через поисковые системы и будет далее развиваться.
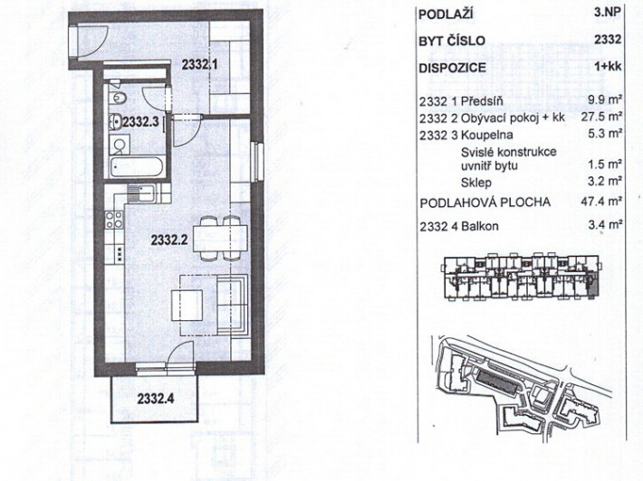
Мы предлагаем к продаже квартиру 1 + кк, площадью 47,4 м2 с балконом площадью 3,4 м2, в новом проекте в Праге 9 - Летняны. Квартира находится на 3-м этаже 7-и этажного дома.
Планировка квартиры хорошо продумана: гостиная с кухней площадью 27,5 м2, ванная комната с туалетом имеет 5,3 м2, холл 9,9 м2 и 3,4 м2 балкон. В стоимость входит подвал (3,2 м2) и гараж (13,8 м2).
В непосредственной близости расположен ТЦ Новые Летняны, Lidl, Tesco, Пенни, Альберт, Глобус, Ледовая Арена, Kika, Центр активного образа жизни в Blue Orange, Аквапарк Летняны Лагуна, Skydive Arena, Сквош Синий мир, кинотеатр с 12 экранами, местная библиотека, почтовое отделение, банкомат на территории комплекса, ресторан, детский сад.
Прямо у дома находится автобусная остановка, от которой автобус доставит вас примерно за 4 минуты до метро C - Летняны.