❗ К сожалению, база недвижимости представленная у нас на сайте не актуальна и несет лишь реперезентативный характер,
но все же даст Вам представление о том, какие бывают объекты недвижимости в Праге. Мы работаем над обновлением базы.
Если у Вас есть актуальная база объектов недвижимости в Праге или Вы хотите размещать свои объекты у нас, то будем рады обсудить сотрудничество,
свяжитесь с нами, лучше всего по электронной почте info@rusczech.com или через какой-то мессенджер (мы есть на номере +420773647696).
Наш ресурс, тем не менее неплохо находится через поисковые системы и будет далее развиваться.
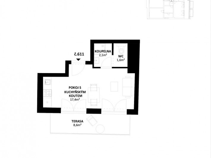
Продается квартира, планировкой 1 + kk, площадью 22 м2, расположенная в хорошем районе Славикова, Прага - Винограды. Эксклюзивное предложение прекрасной квартиры с большой террасой в привлекательной части Винограды, всего в нескольких шагах от площади Jirího z Podebrad. Квартира находится в доме эпохи неоклассицизма, который в настоящее время находится на реконструкции. Квартира спроектирована как однокомнатная квартира с студией, расположена на 6 этаже. В рамках стандартов будут использоваться роскошные материалы для отделки поверхности и сантехника из Villeroy & Boch, Hüppe, Hans Grohe, полы из дуба и дерева, подогрев полов и замена окон новыми, с видом на красивый внутренний двор. Готовность к переезду в декабре 2017 года. Отличная доступность к метро и трамваям. Расположение предлагает широкий выбор ресторанов, развлекательных заведений, школ и детских садов. Энергетический класс G показан временно, в связи с поправкой к Закону №. 406/2000 Coll. Для получения дополнительной информации обратитесь в агентство недвижимости или посетите веб-сайт.